Реконструкція котеджу в Евріка-Веллі, одному з житлових районів міста Сан-Франциско, штат Каліфорнія, США, виконана у 2021 році за проектом архітектурного бюро jones | haydu. Триповерховий будинок площею 295 квадратних метрів розташовується далеко від вулиці на західному схилі крутого пагорба і має чудові краєвиди на центр міста та вежу Сютро.

Перед архітекторами стояло завдання реконструювати та розширити старий будинок, який постраждав від землетрусу. Побудований у 1900-і роки, будинок протягом багатьох років ремонтувався та розширювався, в результаті перетворився на мішанину архітектурних стилів. Враховуючи, що існуюча будівля займає основну частину ділянки, прикрасою якої є величезний Монтерейський кипарис на задньому дворі, потрібно забезпечити раціональне використання площі та використовувати зв'язок будинку з навколишнім ландшафтом.
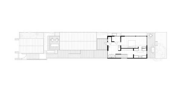
Спочатку було знесено багато внутрішніх стін, додано нові вікна від підлоги до стелі. Нові тераси, облаштовані на різних рівнях, дозволили відкрити інтер'єр та забезпечити його зв'язок із зовнішнім середовищем. На першому поверсі, що височіло над вулицею та використовувався як автономна майстерня, було додано консольну прибудову з гостьовою кімнатою, яка затіняє новий внутрішній дворик унизу. За гостьовою кімнатою спроектовано домашній офіс, а також додано сходи, що з'єднують цей рівень з рештою будинку.
Вітальня на другому поверсі була звільнена від внутрішніх стін, а невеликі вікна замінені на скляні панелі на всю висоту приміщення під стелею. Щоб створити просторе приміщення на третьому поверсі, було піднято дах і змінено кут її нахилу. У головній ванній кімнаті в кутку зі скляними стінами була встановлена окрема ванна, яка дозволяє приємні водні процедури поєднувати з милуванням Твін Піксом, елітним житловим районом, розташованим на відстані на двох крутих схилах.
Інтер'єр вражає функціональністю та затишком. Холодний натуральний камінь і мармур, з якого виконані камін, кухонні стільниці, ванні кімнати та підлоги в спальнях, врівноважується дерев'яним покриттям деяких поверхонь та спокійною теплою палітрою кольорів. Основна житлова зона з високими стелями виглядає респектабельно та виразно, завдяки використанню в оформленні ремісничих виробів та оригінальних предметів мистецтва та дизайну.
Повністю змінився зовнішній вигляд будинку. Його пряма вісь взаємодіє з формами будівлі в міру їхнього підйому до головного входу. Форми будинку ідеально поєднуються одна з одною і створюють унікальну атмосферу, яка посилюється кипарисом та палітрою матеріалів, що використовуються для оформлення фасадів, серед яких бетон, деревина кедра, метал зі стоячим фальцем та цементні панелі. Кульмінація форми проявляється у передній частині, відсилаючи до типової народної архітектури Сан-Франциско. «Перевернутий» еркер височить на 2,4 метри від фасаду, нижче якого обладнана яма для багаття на лісовій підстилці.

































Джерело: https://coolhouses.ru/arhitektura/dom-s-mnogourovnevym-fasadnym-ekstererom.html
Источник: zefirka.net



