Проект «Будинок під вербою» (Under the Willow Tree House), розроблений архітектурним бюро Objekt Architecten, реалізований у 2020 році у місті Нінові, Бельгія. Спочатку планувалося відремонтувати старий будинок клієнтів, що стоїть на ділянці, однак, через тиждень, плани кардинально змінилися. Сім'я придбала старовинний будинок у найвищій точці села, на ділянці площею 4500 квадратних метрів серед мальовничої місцевості. Крім розкішних видів на навколишній ландшафт, ділянка мала ще одну перевагу: на ній росла вікова плакуча верба, яка стала центром нового життя сім'ї.

Перед архітекторами стояло завдання максимально зберегти історичний характер будинку, збудованого у 1904 році. Щоб зберегти унікальний цегляний фасад, виконаний у традиційному фламандському стилі, навколо нього була розроблена нова конструкція. Охоплюючи оригінальний об'єм будівлі, вона вписалася в основний корпус за принципом помади. Нова конструкція повністю облицьована чорною плиткою, яка ідеально поєднується з оригінальною цегляною кладкою.
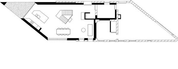
На площі 160 квадратних метрів були розміщені всі необхідні для комфортного життя сім'ї функціональні зони: громадський простір відкритого плану, що поєднує вітальню, їдальню та кухню, а також чотири спальні та робоча студія власника будинку, професійного гончаря. За бажанням замовника внутрішня програма будинку тісно пов'язана із зовнішнім світом, що візуально розширює інтер'єр і робить його особливо цікавим та динамічним.
Особливістю проекту є його екологічність та ретельний відбір матеріалів. Як ізоляційний матеріал для стін було використано конопляне вапно, для даху — пластівці целюлози. Внутрішні стіни оздоблені мергелем, глинистим каменем, що забезпечує грубу природну текстуру, а ванні кімнати – водовідштовхувальною вапняною штукатуркою таделакт. Несучі видимі перекриття виконані з дерева, предмети кухонних меблів – з блокових дощок, а двері з опалубного матеріалу.
Столярні вироби, встановлені із зовнішнього боку будівлі, виготовлені австрійською компанією Mondian. Щоб відповідати фасадному облицюванню, вікна були оброблені алюмінієм глибокого чорного кольору, тоді як зсередини вони мають дерев'яне оздоблення, що відповідає глиняній штукатурці. Якісний відбір матеріалів, потрійне скління, тепловий насос зі свердловинним теплообмінником та система вентиляції типу D із рекуперацією тепла забезпечують максимальну кліматичну ефективність у будинку.
Проект відрізняється дбайливим ставленням до природи та первозданної краси садиби. Територію ділянки не стали асфальтувати, а використовували екологічніші варіанти її благоустрою. Так, наприклад, паркувальні місця, були покриті гравійним газоном, а сходи до вхідних дверей та студії плавають над зручним для бджіл палісадником.


























Джерело: https://coolhouses.ru/arhitektura/ekologichnyy-fermerskiy-dom-s-vekový-plakuchey-ivoy.html
Источник: zefirka.net



