Елегантний родинний маєток в околицях Бангкока

Проєкт Arayaasanee House, спроєктований DminusplusB, був завершений у 2019 році в Суанлуанзі, приміській зоні Бангкока, Таїланд. Двоповерхова споруда, що займає 1500 квадратних метрів, належить родині, яка вела бізнес в околицях Ампави протягом багатьох років і давно плекала бажання звести особистий будинок біля Khung Nam, де поєднуються дві річки.

Згідно з побажаннями клієнта, будівля, на зведення якої знадобилось три роки, виконана в сучасному тропічному стилі з використанням елементів традиційного місцевого колориту. Перед архітекторами стояла мета створення великої комфортної резиденції, гармонійно інтегрованої в навколишній пейзаж. З цієї причини внутрішня структура будинку розроблялася паралельно з архітектурним оформленням зовнішнього вигляду.

Зважаючи на те, що одним з першочергових запитів замовника було створення помешкання з атмосферою затишку, архітектори визначили деревину тика як головний матеріал для внутрішнього оздоблення, оскільки її золотисто-коричневий відтінок і неповторний візерунок сприяли формуванню комфорту. Зовнішнє облицювання будівлі також виконано з дерева, яке характеризується не тільки виразними естетичними якостями, але й підвищеною стійкістю до деструктивних факторів.

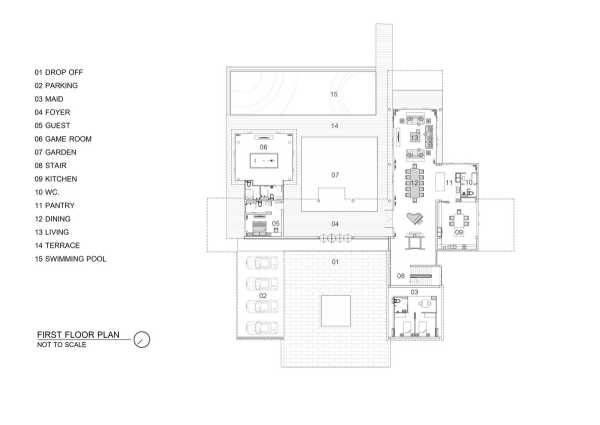
Центральний вхід до будинку ефектно підкреслено масивною кам’яною стіною, за якою знаходиться соціальна зона відкритого планування. Кам’яна стіна не тільки забезпечує потрібний рівень приватності, але й слугує “стіною несподіванок”, потрапляючи за яку, гість опиняється у світі розкішного інтер’єру та захопливих панорам на річку Мае Клонг.

Житловий простір розділений по обидва боки коридору, який сприймається як місцевість за межами будівлі. Зліва від нього розміщені гостьова кімната, ігрова кімната та просторий басейн, що генерує відчуття єдності річки та будинку. Права частина будинку є персональною зоною родини. Тут розташована велика вітальня з висотою стелі понад три метри, яка поєднана в єдиний простір з кухнею та обідньою зоною.

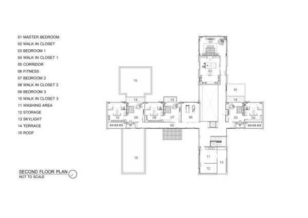
Ліфт і сходи ведуть на другий поверх, де знаходяться 4 спальні з індивідуальними ванними кімнатами та гардеробними, а також спортивний зал. Головна спальня виступає консоллю на п’ять метрів над житловою зоною, виконуючи функцію захисного навісу від сонячних променів і опадів. Великі площі скління будівлі дозволяють безперешкодно спостерігати за краєвидами, зокрема бачити місце злиття двох річок.

Джерело: https://coolhouses.ru/arhitektura/roskoshnyy-semeynyy-dom-v-sovremennom-tropicheskom-stile.html

Источник: zefirka.net

No votes yet.
Please wait...

Залишити відповідь

Ваша e-mail адреса не оприлюднюватиметься. Обов’язкові поля позначені *

Цей сайт використовує Akismet для зменшення спаму. Дізнайтеся, як обробляються дані ваших коментарів.