Двоповерхова родинна оселя в Джакарті.

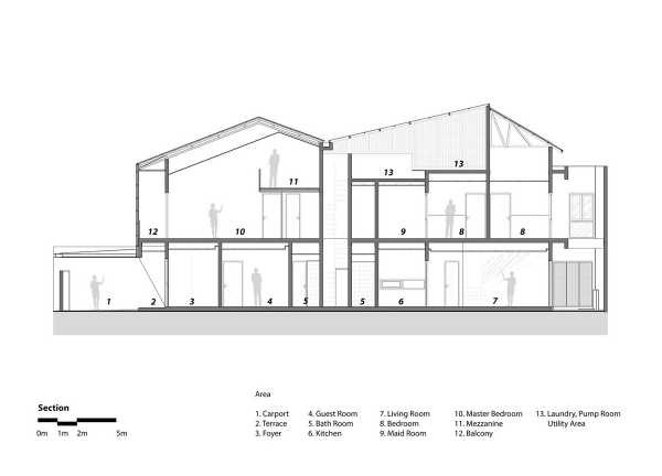
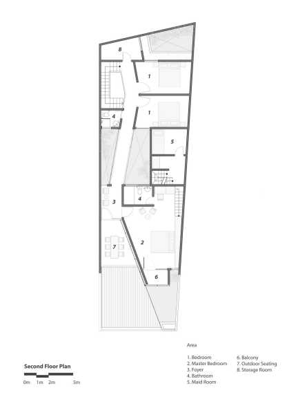
Проєкт Parhuis House, спроєктований Aaksen Responsible Aarchitecture, збудований у 2021 році в місті Джакарта, Індонезія. Двоповерхова житлова будівля для сім’ї площею 250 квадратних метрів з чітким поділом на функціональні зони розміщена на тісній земельній ділянці. Публічна зона знаходиться в передній частині споруди, а приватна – в задній.

Довга сторона будинку орієнтована на схід і захід. На західному фасаді встановлені повторно використані дерев’яні панелі, що захищають приміщення від інтенсивного сонячного світла та створюють плинні простори, що інтегрують інтер’єр та екстер’єр в єдину динамічну структуру. Parhuis House наповнений дивовижними просторовими рішеннями з акцентом на плавний перехід між внутрішнім і зовнішнім простором, що сприятливо впливає на самопочуття та комфорт мешканців.

Основна концепція будинку визначається чітким просторовим розмежуванням особистої, загальної та службової зон, при цьому кожна ділянка є відкритою, вільною та безперервною, що особливо актуально в обставинах, коли сім’я проводить більшу частину часу вдома. Зовнішні перегородки допомагають гнучко розподіляти природне освітлення, об’єднуючи розрізнені функції в одне ціле.

Проєкт складається з двох відокремлених основних об’ємів, поєднаних переходом. Перший поверх займає соціальна зона – вітальня, обідня зона, кухня та гостьова кімната. На другому поверсі знаходиться приватна зона з трьома спальнями та санвузлами. В головній спальні передбачено антресольний ярус, в якому облаштовано робочий простір. Внутрішній дворик, сформований між двома об’ємами, використовується як відкрита зона відпочинку для релаксації на свіжому повітрі в оточенні води та зелених насаджень.

Будинок вирізняється енергоефективністю. Його приміщення наповнені природним світлом і забезпечені циркуляцією повітря, що робить його затишним і комфортабельним для проживання.

Джерело: https://coolhouses.ru/arhitektura/semeynyy-dom-s-dinamichnoy-i-celnoy-kompoziciey-vnutrennih-i-vneshnih-prostranstv.html

Источник: zefirka.net

No votes yet.
Please wait...

Залишити відповідь

Ваша e-mail адреса не оприлюднюватиметься. Обов’язкові поля позначені *

Цей сайт використовує Akismet для зменшення спаму. Дізнайтеся, як обробляються дані ваших коментарів.