Сучасний сільський будинок для заміського відпочинку у Португалії

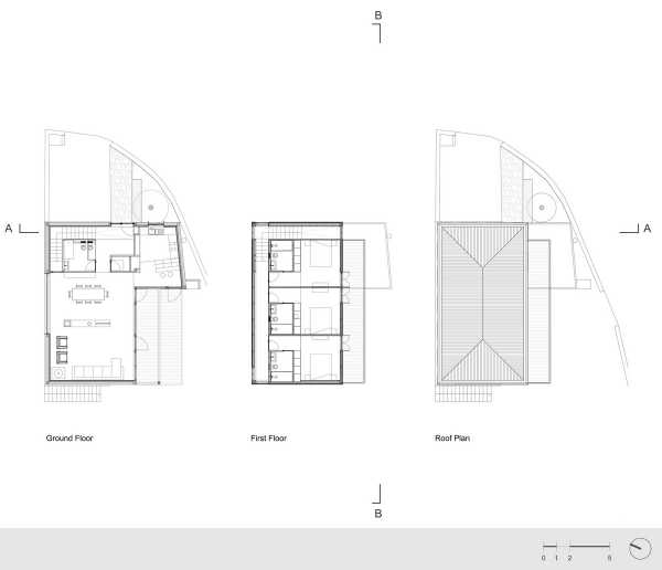
Проект House in Baião розроблений архітектурним бюро Traço Alternativo Arquitectos Associados та реалізований у 2021 році в муніципалітеті Байао, округ Порту, Португалія. Двоповерховий будинок площею 243 квадратні метри для заміського відпочинку сім'ї збудований у горбистій сільській місцевості на стародавніх руїнах в оточенні невеликих житлових будівель.

Перед архітекторами стояло завдання вписати проект у контекст місця з огляду на складну морфологію землі. При цьому необхідно було зберегти історичну пам'ять про початковий будинок. Щоб наблизитися до традиційної архітектури, для будівництва та оздоблювальних робіт було обрано натуральні, переважно місцеві матеріали. Натхненням для проекту стало натуральне дерево, яке зазвичай використовувалося для будівництва espigueiro, місцевих зерносховищ. Завдяки своїм високим якісним та естетичним характеристикам, воно стало привілейованим матеріалом для конструкції будівлі та облицювання екстер'єру та інтер'єру.

Перший поверх будинку займає громадський простір відкритого плану, який об'єднує вітальню, їдальню та кухню та має тісний зв'язок із садом, у якому збудовано маленьке «espigueiro». Дерев'яні фасади “espigueiro” створюють діалог з верхнім об'ємом будинку, в якому розміщується приватна зона з трьома спальнями. Цей об'єм, повністю виконаний з дерева, був попередньо зібраний у столярній майстерні, потім, подібно до деталей Lego, розібраний і знову зібраний за короткий час вже на будівельному майданчику.

Будинок має привабливий стильний вигляд. Дерев'яні фасади верхнього поверху ефектно контрастують із грубими бетонними стінами нижнього рівня. Дерев'яні інтер'єри створюють теплу домашню атмосферу, що сприяє приємному проведення часу. Незважаючи на сучасний дизайн, будинок цілком відповідає поняттю «дерев'яне сховище», про яке давно мріяв замовник.

Джерело: https://coolhouses.ru/arhitektura/sovremennyy-selskiy-dom-s-derevyannym-intererom.html

Источник: zefirka.net

No votes yet.
Please wait...

Залишити відповідь

Ваша e-mail адреса не оприлюднюватиметься. Обов’язкові поля позначені *

Цей сайт використовує Akismet для зменшення спаму. Дізнайтеся, як обробляються дані ваших коментарів.