Лісові пожежі вплинули на дизайн цього лісового будинку Колорадо, створеному Рене дель Гаудіо. Сталевий сайдинг та негорючі дошки на даху відносяться до протипожежних характеристик у житловому будинку з однією спальнею у Боулдері, штат Колорадо, спроектованому американською фірмою Renee del Gaudio Architecture. Місцева студія прагнула зменшити будівлю, розташовану у передгір'ях Скелястих гір, до голих простих елементів.

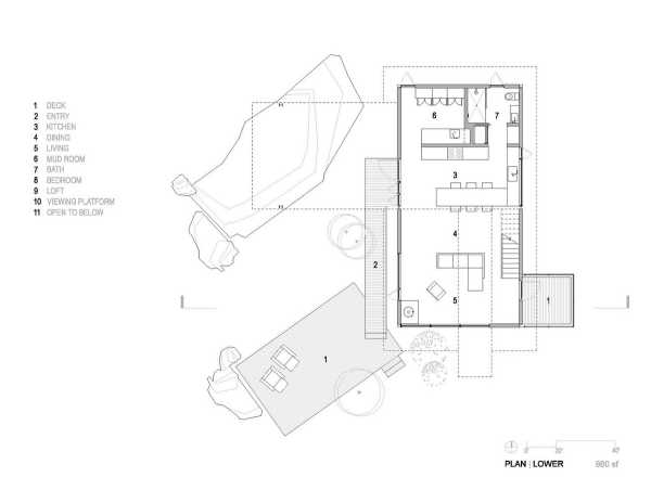
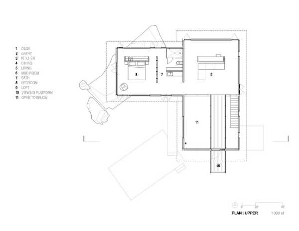
«Форма, площа основи та дизайн інтер'єру цього будинку відображають філософію життя з тим, що нам потрібно — і не більше», — розповіли у студії. Створення будинку, здатного пережити лісову пожежу, було головним завданням. Це стає все більш важливим міркуванням у Колорадо, де великі лісові пожежі стали звичайним явищем. Будинок площею 173 квадратні метри височить на два рівні і розташований поряд зі скелястим оголенням. Нижній поверх прямокутної форми і включає кухню, їдальню та вітальню. На верхньому рівні, що має форму літери L, знаходиться спальня та горище. Спальний обсяг піднімається над схилом пагорба за допомогою сталевих опор. На другому поверсі також знаходиться доріжка, яка проходить через громадську зону та закінчується на балконі, де мешканці можуть милуватися краєвидом.
У будинку є низка протипожежних елементів. По-перше, зовнішня оболонка має вогнестійку конструкцію, що включає бетонну основу, сталеву раму та сталеву обшивку. Прямо під покрівельною мембраною є шар високопродуктивних гіпсових покрівельних плит під назвою DensDeck. Плити відомі своєю міцністю та негорючим. Цей матеріал був використаний для обробки дерев'яних стель будинку. Команда дизайнерів також усунула місця, де могли збиратися листя та хвоя. У будинку студія встановила автоматичну систему пожежогасіння. Розміщені поряд з дерев'яними кроквами, зрошувальні головки пофарбовані в чорний колір і є елементом промислового дизайну. Звиси даху допомагають затіняти великі ділянки скла. Стіни та каркас даху обернуті суцільною зовнішньою ізоляцією з вбудованим жорстким бар'єром, що допомагає утворювати повітронепроникну оболонку. Будинок опалюється дров'яною піччю та випромінювальною системою в бетонній плиті. Вікна, що відкриваються, дозволяють свіжому повітрі циркулювати в теплі місяці. Електроенергія забезпечується сонячною батареєю потужністю чотири кіловати на даху. Високоефективна побутова техніка, світлодіодне освітлення, що регулюється, і велика кількість денного світла допомагають мінімізувати споживання електроенергії. У навісі є зарядна розетка для електромобілів.



















Назва: Goatbarn Lane
Розташування: Боулдер, Колорадо, США
Архітектура: Renee del Gaudio Architecture
Загальна площа: 173 м2
Фото: David Lauer
Джерело: https://www.magazindomov.ru/2021/11/21/lesnoj-protivopozharnyj-dom-v-ssha/
Источник: zefirka.net



