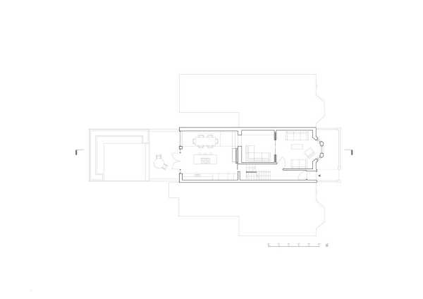
Студія RISE Design відремонтувала та розширила старий вікторіанський будинок з терасою у Південному Лондоні, створивши план поверху з градієнтами світла для професійної пари. Назва проекту говорить про зміну характеру світла у кожній зоні будинку. Кухня-пастка в задній частині будинку з великими мансардними вікнами, садовими вікнами і дверима патіо – яскраве і соціальне серце будинку. Клієнти можуть усамітнитися у більш темному, затишному та затишному центрі на першому поверсі або насолодитися м'якшим світлом у передній вітальні чи кімнатах нагорі, призначених для відпочинку чи роботи з дому.

Клієнти, Джордж Коттер, юрист, і Крісті Малівінді, директор з дизайну, заснували RISE Design Studio, досліджуючи архітектурні прецеденти, і одразу ж зв'язалися з підходом студії до світла, матеріалів, екологічності та майстерності. Завдання, яке спочатку полягало у створенні прибудови з бічним поверненням та модернізації кухні, було розроблено, коли RISE Design Studio надала клієнтам ідеї реконструкції верхніх поверхів, а також поради щодо того, як включити екологічно безпечні активи.
Проект з'єднує кухню, що раніше була невеликим окремим камбузом у задній частині будинку, з рештою будинку, щоб позначити новий простір для розваг та спілкування. Студія RISE Design провела розкопки майже на метр вниз, щоб створити великий об'єм у новій кухні і підкреслити природне світло від панорамного скління. Оригінальні цегляні стіни були збережені та відреставровані, доповнюючи індустріальну палітру у бруклінському стилі зі сталі, порцеляни, бетону та дерева. Термічно розбиті сталеві та скляні двері ведуть у ландшафтний сад, також спроектований RISE.
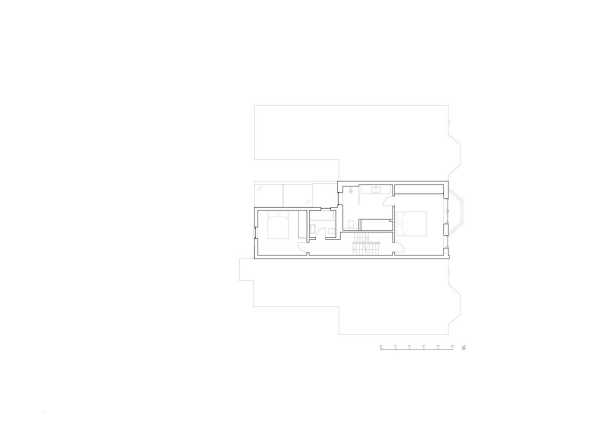
Нагорі RISE Design Studio ретельно перебудувала плани першого та другого поверхів, щоб зберегти список із трьома спальнями, покращивши при цьому функцію кожної кімнати та плавність плану. Завдання клієнтів включало велику головну ванну кімнату та підсобні приміщення, які тепер стоять там, де колись була невелика спальня, тому RISE додала прибудову до мансарди для розміщення додаткових гостьових апартаментів та домашнього офісу. Фірмовий підхід RISE Design Studio до чутливого використання матеріалів та довкілля відчувається у всьому будинку.
Виготовлена на замовлення кухня з дуба та порцеляни, зроблена на замовлення сталева вітрина, дубова балюстрада ручної роботи та меблі для ванної кімнати втілюють у собі суворий підхід студії до створення просторів, що відповідають високим екологічним стандартам. RISE Design Studio допомогла клієнтам встановити фотоелектричні сонячні панелі на дах, систему рекуперації тепла з механічною вентиляцією, сталеве скління з термічним руйнуванням та герметичність будинку.



























Джерело: https://decor.design/%D0%BB%D0%B0%D0%B9%D1%82-%D1%85%D0%B0%D1%83%D1%81-rise-design-studio/
Источник: zefirka.net



