Будинок з офісом, дворами та двориками в Японії

40-річна будівля зі сталевим каркасом була реконструйована, щоб включити до неї різні приміщення, такі як житло, офіс, склад, магазин та багато іншого. Замовником цього проекту є власник броварні, заснованої у 1865 році. Окрім традиційних продуктів (соя та місо) компанія також працює над створенням нових продуктів з використанням старих технологій, удосконалених за час існування броварні.

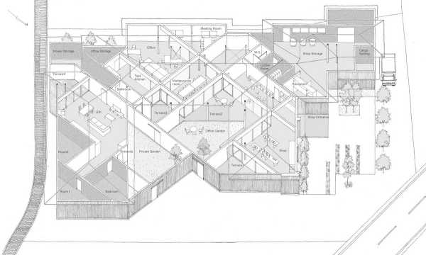
Хоча пивоварня знаходиться в іншому місці, замовник хотів створити місце з більш чистою атмосферою для інших бізнесових частин — офісні приміщення, магазин та складські приміщення для поширення продукції по всій країні. На щастя, будівля для цього проекту реконструкції була великою, тому можна було створити і Будинок, і Бізнес у рамках існуючої архітектури. Для внесення до проекту частини історії пивоварні зовнішні стіни були обшиті деревом зі старих бочок з-під місо, розібраних клієнтом. Обвуглена деревина відноситься як до іміджу бренду, так і до його оточення. Дах та основна конструкція будівлі були збережені незайманими, а у відкритий простір було вставлено елемент плану, повернутий на 45 градусів по відношенню до сітки будівель. Ідея повороту просторів на 45 градусів полягає в тому, щоб створити неоднозначне відчуття між старою та новою архітектурою. Це також створює різноманітні простори під карнизами і дворами, як ділянки землі, що вклинилися між квадратними полями.

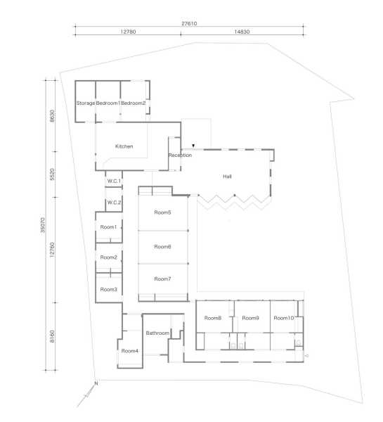
Через багатофункціональний характер цієї будівлі щодня до неї входить і виходить невизначена кількість людей. Тому автори вирішили розмістити функції будівель так, щоб вони поступово ставали більш приватними. Склад і магазин розташовані на північ, обличчям до дороги, в центрі – офіс та кімната прототипування для розробки продукту, а на південь – резиденція клієнта. Дивлячись з однієї кімнати, шари скляних дверей та стін створюють глибину та градацію, стираючи межі між просторами.

Назва: Будинок та офіс в Хофу (House and Office in Hofu)
Розташування: Хофу, Японія
Архітектура: Tato Architects
Будівництво: 2018
Загальна площа: 460 м2
Фото: Shinkenchiku Sha

Джерело: https://www.magazindomov.ru/2022/03/13/dom-s-ofisom-dvorami-i-dvorikami-v-yaponii/

Источник: zefirka.net

No votes yet.
Please wait...

Залишити відповідь

Ваша e-mail адреса не оприлюднюватиметься. Обов’язкові поля позначені *

Цей сайт використовує Akismet для зменшення спаму. Дізнайтеся, як обробляються дані ваших коментарів.